Référence : 4313
Calculette
Partager
Dernières parcelles livrables disponibles en Lotissement
Description de l'offre
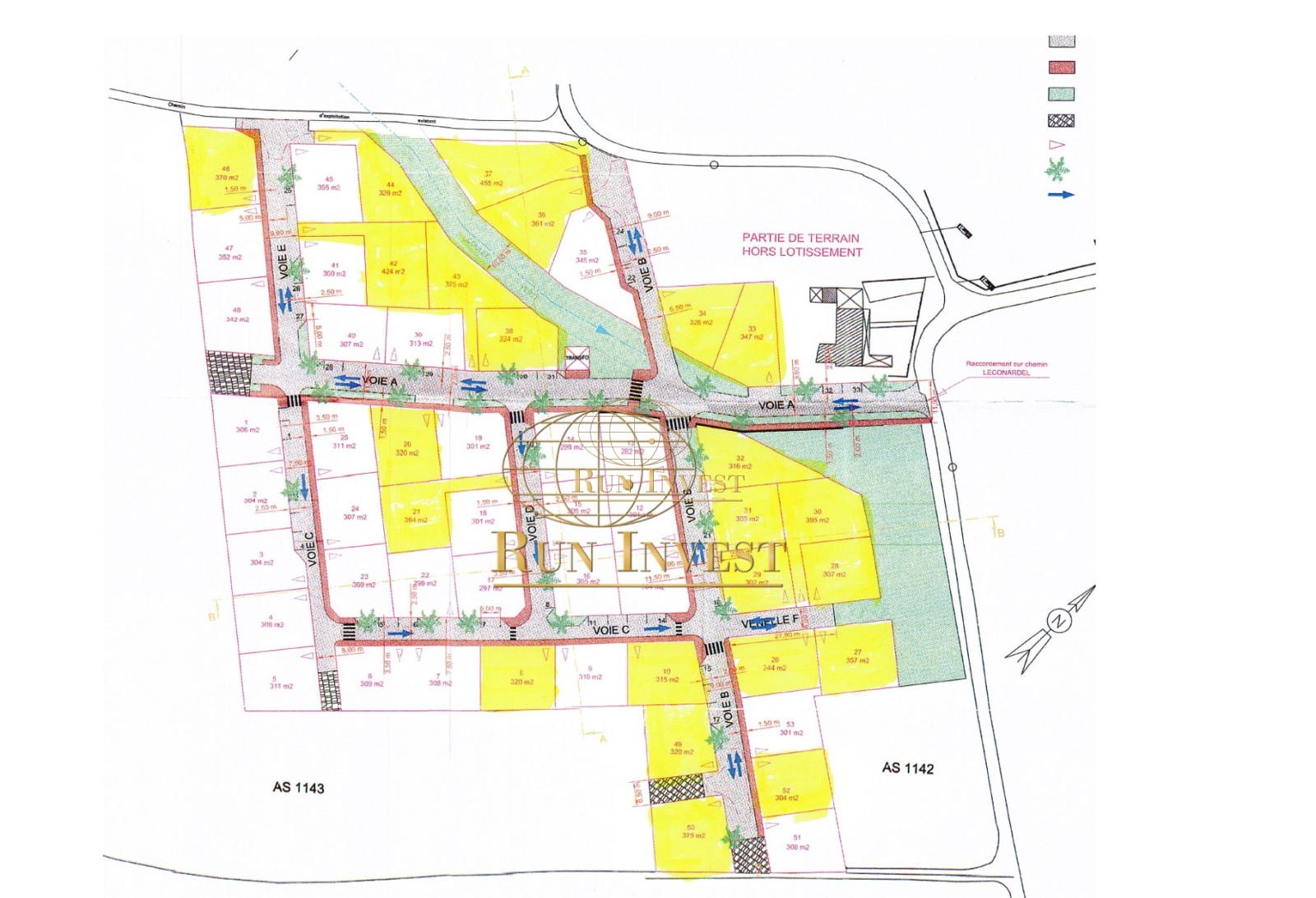
A Saint Benoit - Entrée Nord de la Ville LOTISSEMENT ACHEVE et ACTABLE IMMEDIATEMENT. (Photos non contractuelles prises au début du projet) L'Agence Run Invest vous propose de découvrir les dernières disponibilités de ce lotissement. Bordé de Champs de canne, le lotissement "Bleu Conardel" n'est qu'à 2 minutes de la Gare routière et des axes routiers. On est préservé de l'agitation de la ville. Les terrains sont livrés viabilisés, avec un muret de moellon en base. Les terrains disponibles sont d'une superficie comprise entre 302m2 et 424m2 Une visite vous permettra de découvrir tout le potentiel du site. Disponibilités immédiates sur les lots : -31 : 305m2 à 96 000€ -32 : 320m2 à 100 500€ -42 : 425m2 à 132 000€ -43 : 375m2 à 117 000€ On vous attend pour visiter. Nos prix s'entendant Frais d'agence inclus ( charge vendeur) Mandat n° 4313 - Agence RUN INVEST IMMOBILIER 0262 46 90 26
Descriptif du bien
- Code postal : 97470
- surface terrain : 305 m²
- Terrain constructible : OUI
- Terrain Viabilisé : OUI
- Raccordement eau : OUI
- Raccordement électricité : OUI
- Raccordement téléphone : OUI
- Copropriété : NON
- Prix de vente : 96 000 €
- Les honoraires d'agence seront intégralement à la charge du vendeur
La ville de Saint-Benoît (97470)
Nous Contacter
Les informations recueillies sur ce formulaire sont enregistrées dans un fichier informatisé par La Boite Immo agissant comme Sous-traitant du traitement pour la gestion de la clientèle/prospects de l'Agence / du Réseau qui reste Responsable du Traitement de vos Données personnelles.
La base légale du traitement repose sur l'intérêt légitime de l'Agence / du Réseau.
Elles sont conservées jusqu'à demande de suppression et sont destinées à l'Agence / au Réseau.
Conformément à la loi « informatique et libertés », vous disposez des droits d’accès, de rectification, d’effacement, d’opposition, de limitation et de portabilité de vos données. Vous pouvez retirer votre consentement à tout moment en contactant directement l’Agence / Le Réseau.
Consultez le site https://cnil.fr/fr pour plus d’informations sur vos droits.
Si vous estimez, après avoir contacté l'Agence / le Réseau, que vos droits « Informatique et Libertés » ne sont pas respectés, vous pouvez adresser une réclamation à la CNIL.
Nous vous informons de l’existence de la liste d'opposition au démarchage téléphonique « Bloctel », sur laquelle vous pouvez vous inscrire ici : https://www.bloctel.gouv.fr
Dans le cadre de la protection des Données personnelles, nous vous invitons à ne pas inscrire de Données sensibles dans le champ de saisie libre.
Ce site est protégé par reCAPTCHA, les Politiques de Confidentialité et les Conditions d'Utilisation de Google s'appliquent.
Partager l'offre
